В МФК «Москва» реализовано пространство, где современный архитектурный подход подружился с уютным ретро. Переход от городского шума к частной жизни здесь начинается с тяжелой деревянной двери входной группы, за которой суета сменяется ароматом дерева и свежестью очищенного воздуха.
Сценография пространства
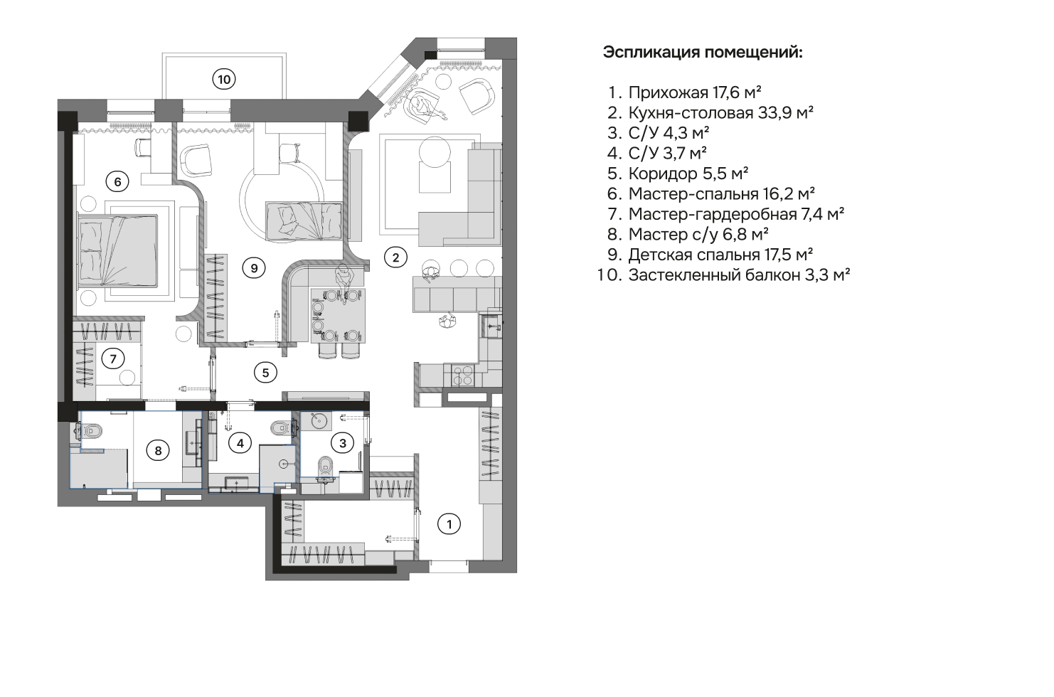
Квартира встречает вас порядком: вместительная гардеробная при входе позволяет оставить верхнюю одежду и вместе с ней — дневные заботы. Дизайнерская планировка с четким зонированием делит пространство на социальное и глубоко личное. Сердце дома — просторная кухня-гостиная, где правит «мягкий контемпорари».
Здесь графичные линии кухонного острова в терракотовых оттенках встречаются с мягкостью бежевого текстиля. Пока премиальная техника работает в едва слышном режиме, вы наблюдаете, как солнечный свет, проходя сквозь деревянные переплеты двойных стеклопакетов, рисует геометричные узоры на полу. Окна, выходящие в сторону улицы Горького и в тихий внутренний двор, отсекают звуки центра, оставляя лишь визуальный ритм города.
Приватная территория
Личная зона спроектирована как дом внутри дома. Мастер-спальня с собственной просторной гардеробной и отдельной ванной комнатой превращает сон и подготовку к новому дню в эстетический ритуал. Вторая спальня, расположенная в другой части квартиры, оставляет пространство для маневра: будь то кабинет для вдумчивой работы или гостевая комната.
Второй санузел и продуманная логика движения между комнатами создают ощущение легкости. Здесь не нужно искать компромиссы между эстетикой и бытом. Центральная система кондиционирования незаметно поддерживает идеальную температуру, а подача свежего воздуха позволяет забыть о том, что вы находитесь в самом сердце мегаполиса.
Второй санузел и продуманная логика движения между комнатами создают ощущение легкости. Здесь не нужно искать компромиссы между эстетикой и бытом. Центральная система кондиционирования незаметно поддерживает идеальную температуру, а подача свежего воздуха позволяет забыть о том, что вы находитесь в самом сердце мегаполиса.
Материалы и послевкусие
Каждый контакт с этим интерьером — это разговор о качестве. От прикосновения к фактурному дереву оконных рам до тишины, которую обеспечивает продуманная архитектура. Это пространство, которое не навязывает себя, а служит идеальным фоном для жизни, где главная ценность — ваш внутренний баланс.
Планировка